ESTATE

土地・建売情報

  • NEW
  • 土地

由利本荘市薬師堂字二本木分譲地

由利本荘市薬師堂字二本木

690万円 ~ 760万円

価格 690万円 ~ 760万円
土地面積 217.00㎡(65.64坪)~224.00㎡(67.76坪)
建物面積 JR由利高原鉄道鳥海山ろく線 薬師堂駅まで550m 徒歩7分
交通 --
学区 本荘東小学校・本荘東中学校

人気の薬師堂エリア【7区画新規分譲地】好評分譲中!

◎希少価値の高い薬師堂の新規分譲地
◎新設校の東小学校・東中学校に近くこれからの発展の期待できるエリアです。
◎1区画が広くゆったり家を建築できる分譲地です
◎非常に閑静な住宅街です。

詳細は不動産事業部までお問い合わせください。
【TEL:0182-35-4779(谷川)】

POINT

物件コンセプト・ポイント

ACCESS

アクセスマップ

LOCATION

周辺環境

  • 薬師堂駅/550m徒歩7分
  • 本荘東小学校(建設中)750m徒歩10分
  • 本荘東中学校800m徒歩10分
  • コメリパワー本荘インター店1200m徒歩17分
  • ナイス 本荘インター店1300m徒歩18分

ABOUT

物件詳細情報

所在地 由利本荘市薬師堂字二本木
価格 1区画単価:690万円~760万円
最多価格帯 720万円
交通 --
小学校区 本荘東小学校 中学校区 本荘東中学校
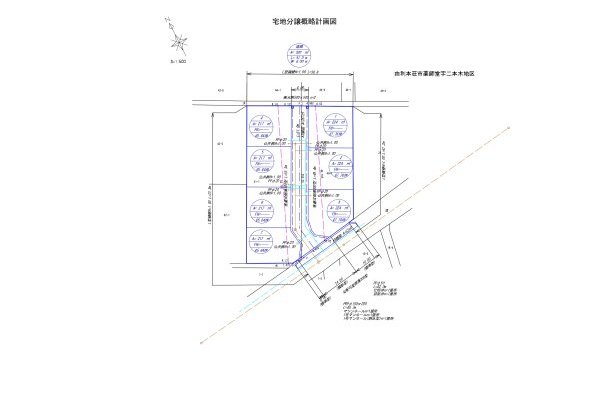
総区画数 7区画 販売区画数 5区画
土地面積 ①224.00㎡(67.76坪)690万円
④217.00㎡(65.64坪)690万円
⑤217.00㎡(65.64坪)720万円
⑥217.00㎡(65.64坪)720万円
⑦217.00㎡(65.64坪)750万円
②③は売約済
建物面積 JR由利高原鉄道鳥海山ろく線 薬師堂駅まで550m 徒歩7分
建ぺい率 60% 容積率 200%
間取り -- 現況 --
接道状況 位置指定道路(区画中央) 幅員:6.0m 間口:区画割図参照 構造・工法 --
地目 宅地(予定) 用途地域 第1種住居地域
都市計画 非線引区域 取引形態 売主
土地権利 -- 建築確認
番号
--
電気 東北電力 ガス --
上水道 公共上水道(予定) 下水道 公共下水道(予定)
設備 --
開発面積 1,865.73㎡ 開発許可番号 【由本都第78号】
完成時期
(築年月)
2026年2月5日 入居時期 --
取引条件の
有効期限
--
情報更新日 2025年10月16日 次回情報
更新日
2025年10月30日
備考 宅建業許可秋田県知事(5)第1873号
(公社)秋田県宅地建物取引業協会
(公社)全国宅地建物取引業保証協会秋田本部
東北地区不動産公正取引協議会加盟

物件のご見学・お問い合わせ

CONTACT

物件お問い合わせフォーム

  1. 入力

  2. 確認

  3. 完了

今なら最大10,000円!ご来場キャンペーン

【キャンペーン内容】
①事前予約のうえご来場で1,000円分の商品券プレゼント!
②ご予約後、当社よりお送りする事前アンケートへのご回答で、さらに9,000円分の商品券プレゼント!
※①・②それぞれ1世帯様につき1回となります。

【キャンペーン適用条件】
●キャンペーン①
・当社ホームページのフォームより、ご来場日前日の22:00までにご予約いただいた方
・ご予約日時に、ご指定の会場へお越しいただいた方

●キャンペーン②
・キャンペーン①の適用条件をすべて満たす方
・ご来場日前日の23:59までにアンケートへご回答いただいた方

●キャンペーン①②共通
・サンコーホームグループ(サンコーホーム・ジャストインハウス・桧家住宅秋田店)へのご来場が初めての方
・20歳以上の方

下記のフォームに必要項目を入力の上、
「確認画面へ進む」ボタンを押してください。

必須 ご希望の内容
必須 ご希望の日時

2025/10

1

--

2

--

3

--

4

--

5

--

6

--

7

--

8

--

9

--

10

--

11

--

12

--

13

--

14

--

15

--

16

--

17

--

18

--

19

--

20

--

21

--

22

--

23

--

24

--

25

--

26

--

27

--

28

--

29

--

30

--

31

--

2025/11

1

--

2

--

3

--

4

--

5

--

6

--

7

--

8

--

9

--

10

--

11

--

12

--

13

--

14

--

15

--

16

--

17

--

18

--

19

--

20

--

21

--

22

--

23

--

24

--

25

--

26

--

27

--

28

--

29

--

30

--

2025/12

1

--

2

--

3

--

4

--

5

--

6

--

7

--

8

--

9

--

10

--

11

--

12

--

13

--

14

--

15

--

16

--

17

--

18

--

19

--

20

--

21

--

22

--

23

--

24

--

25

--

26

--

27

--

28

--

29

--

30

--

31

--

2026/1

1

--

2

--

3

--

4

--

5

--

6

--

7

--

8

--

9

--

10

--

11

--

12

--

13

--

14

--

15

--

16

--

17

--

18

--

19

--

20

--

21

--

22

--

23

--

24

--

25

--

26

--

27

--

28

--

29

--

30

--

31

--

※当日のご予約はお電話にてご予約ください。
※18:00以降のご来場・ご見学は予約のみとなります。
※「×」が記載されているお時間はご予約がいっぱいのため、他のお時間をお選びください。
※ご予約状況により、ご希望に沿えない場合がございます。
ご来場日時の変更につきましては、担当者よりご連絡させていただきますので、ご了承くださいませ。

必須 お名前
任意 お名前(かな)
必須 メールアドレス
必須 郵便番号
必須 ご住所:都道府県
必須 ご住所:市・郡
必須 ご住所:町村・番地
必須 お電話番号
任意 ご質問・ご要望
任意 家づくりに役立つ
メールマガジンの配信
必須 個人情報について

ご来場
キャンペーン
実施中!

ご見学予約
・資料請求